Back to Home Page

Woodlands Grove
Coulsdon

£525,000

3 Bedrooms

1 Bathroom

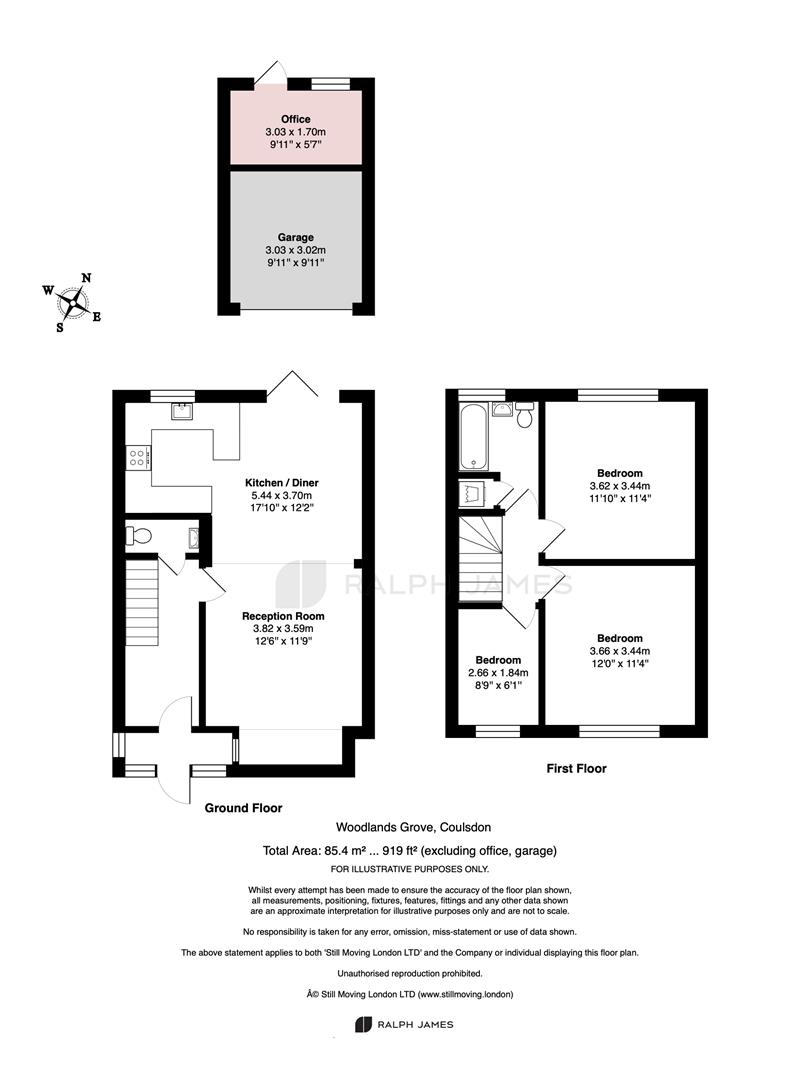
A modernised 3 bedroom property in a family friendly area close good and outstanding schooling options, a choice of train stations and all the amenities of Coulsdon.

  • Modernised three bedroom family home with scope for further extensions (STPP)
  • Convenient home office looking over the rear garden and open views beyond
  • Open plan modern kitchen/dining space leading to a generous family area that could be split back into separate rooms
  • Lovely wooden floor to the downstairs
  • Newly laid resin driveway providing valuable off road parking
  • Large decked area in he rear garden making the most of the views to the rear
  • Conveniently located in a quiet spot of the road fringed by woodland and open green space
  • Nice residential, family friendly area

At Ralph James, we invest time heavily in the visual and digital representation of our client's properties with the in-house marketing department we have. This is done across several digital and print channels — including 3 major property websites and to our growing 19,000+ followers on social media.

Follow us @ralphjamesestateagents

Our property descriptions are short because we would rather talk with you about the properties we sell and let and of course meet with you and show you around.

Like this property?

Get to know

Reigate

A market town with an eclectic vibe and excellent schools, Reigate is a gem of a location. Perfectly placed with access to the M25 from the top of the hill and your pick of beautiful country walks, National Trust spots, and picturesque golf courses, when it’s time to get away from it all.

At the heart of the town you’ll find Priory Park, a stunning historic spot with woodland trails, formal gardens, and beautiful lakes. Just moments from a high street bursting with unique independent businesses, designer boutiques, attractive eateries, and vibrant nightlife.

“Glance out of a window and you’ll see leafy green. Turn a couple of corners down the road and you’re amongst the fields of Gatton Park or overlooking the expansive views from Reigate Hill. Over the past 20 years we’ve found hidden gems in Reigate, from date nights at the Everyman cinema, Sundays browsing at the bookshop or peaceful afternoons lounging in the park. There is a calm and beauty to this area and our house’s surroundings. Our neighbours are a community and we’re always within walking distance of a bike path or trail.”

Lynn, Harewood Close

This field is for validation purposes and should be left unchanged.
Name(Required)
Address(Required)

Your Property Requirements

Share This Property

"*" indicates required fields

This field is for validation purposes and should be left unchanged.