This is a home that feels both welcoming and full of character – a little slice of village life in a setting that’s hard to beat.
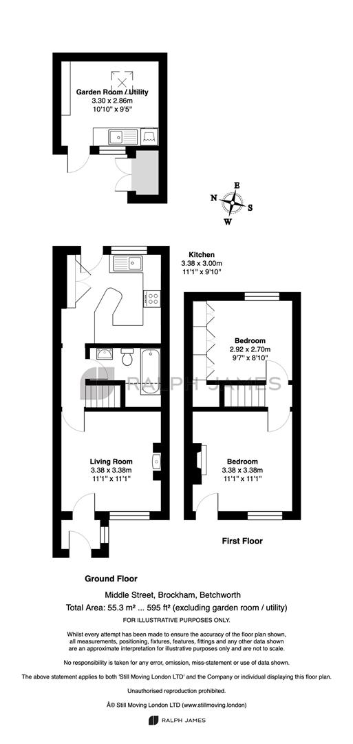
- Charming Victorian two-bedroom cottage in the heart of Brockham village
- Picturesque outlook across the village green and surrounding countryside
- Cosy sitting room with feature fireplace and welcoming ambience
- Modern ground floor bathroom with stylish finish
- Recently updated kitchen with granite worktops, integrated appliances, and stable-style door to garden
- Two well-proportioned double bedrooms, main with decorative fireplace and far-reaching views and the second with floor to ceiling bespoke built fitted wardrobes
- Secluded rear garden with terrace, astro-turf lawn, and mature planting
- Detached garden room/utility – ideal for a home office, studio, or flexible living space
- Off-street parking to the front, plus side and rear pedestrian access
At Ralph James, we invest time heavily in the visual and digital representation of our client's properties with the in-house marketing department we have. This is done across several digital and print channels — including 3 major property websites and to our growing 19,000+ followers on social media.
Follow us @ralphjamesestateagents
Our property descriptions are short because we would rather talk with you about the properties we sell and let and of course meet with you and show you around.
 
                             
                             
                             
                             
                             
                             
                             
                             
                             
                             
                             
                             
                                                         
															 
															